佐佐伯区薬師が丘二丁目 №35424

3,080万円

広島県広島市佐伯区薬師が丘2丁目

広島電鉄宮島線「楽々園」駅徒歩57分

価格
3,080万円
間取り
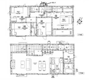
4LDK
土地面積
132.28㎡
所在地
広島県広島市佐伯区薬師が丘2丁目
交通

広島電鉄宮島線楽々園」駅 徒歩57分

建物面積
101.33㎡
築年月
2024年10月(新築)

物件の特徴

  • TVモニタ付きインターホン

  • カウンターキッチン

セールスポイント

南西角地で陽当り良好 道路も広く開放感があります
家族が集うLDKは19.7帖の広さ
ホームパーティをしたりスポーツ観戦をしたり
ワイワイ楽しめます

ポイント

リビング収納 パントリー カップボードがあり収納豊富

担当者のコメント

酒松 健人

物価高になり、高い買い物のマイホームは悩みますが、
家族で長く暮らせるおうちは安心です。
住宅ローンの事などご相談に乗ります。 
毎月の返済額のシュミレーションもできます。
まずは資料請求からでも、お気軽にお問い合わせください。

基本情報

販売戸数
-
総戸数
-
間取り / 詳細
4LDK
LDK 19.7帖/洋室 6.9帖/洋室 5.2帖/洋室 5.2帖/洋室 5.0帖
向き
南東
建物面積(坪数)
101.33㎡(30.65坪)
土地面積(坪数)
132.28㎡(40.01坪)
建ぺい率 /
容積率
50%/100%
築年月
2024年10月(新築)
駐車場 /
月額料金
有(2台) -
土地権利
所有権
土地
(敷金 / 保証金)
- / -
建物構造
木造 / 2階建
傾斜地部分面積
-
路地状敷地
-
私道負担面積
-
セットバック
高圧線下面積
-
施工会社
-
用途地域
第一種低層住居専用
地目 / 地勢
宅地 / 高台
接道状況
角地(南西 公道 5.9m)(南東 公道 6.0m)
国土法届出要否
不要
都市計画
市街化区域
総区画数 /
販売区画数
-/-
現況
完成済み
その他
法令上の制限
-
取引態様
一般媒介
引渡し
即時
取引条件の
有効期限
2025年12月23日

設備条件

設備条件
  • 陽当り良好 / 閑静な住宅地 / 都市ガス / 公営水道 / 公共下水 / 駐車2台可 / システムキッチン / カウンターキッチン / 洗面台 / トイレ2ヶ所 / 床下収納 / TVモニタ付インターホン / 宅配ボックス / 複層ガラス
設備(その他)
    -

その他

物件番号
93718872
管理コード
35424
建築確認番号
第R06認広建セ00070号
情報更新日
2025年12月09日
次回更新予定日
2025年12月23日
取扱会社
  • 株式会社ティアンドエス
  • 広島県広島市佐伯区楽々園5丁目25番8号 2F 佐伯区スポーツセンター前
  • TEL:082-943-6363
  • 広島県知事 (5) 第8818号
  • 公益社団法人 広島県宅地建物取引業協会
    広島県中小企業家同友会

周辺施設

  • 広島市植物公園の画像

    公園

    広島市植物公園

    364m(5分)

近隣の物件

  1. 佐伯区皆賀1丁目 №35974

    広島市佐伯区皆賀1丁目

    4LDK (114.39㎡)

    4,998万円

  2. 佐伯区五日市中央3丁目 №36033

    広島市佐伯区五日市中央3丁目

    3LDK (97.29㎡)

    3,970万円

  3. 佐伯区皆賀1丁目 №35975

    広島市佐伯区皆賀1丁目

    4LDK (109.14㎡)

    4,898万円

  4. 佐伯区五日市中央3丁目 №36034

    広島市佐伯区五日市中央3丁目

    3LDK (96.88㎡)

    3,980万円

佐佐伯区薬師が丘二丁目 №35424

佐佐伯区薬師が丘二丁目 №35424

3,080万円

-

4LDK(101.33㎡)

お気軽にお問い合わせください

無料お問い合わせ

株式会社ティアンドエス

082-943-6363

9:00~17:00

(休:日曜・祝日 GW お盆 正月)