佐伯区五月が丘三丁目 №35731

3,190万円

広島県広島市佐伯区五月が丘3丁目

広島高速交通アストラムライン「広域公園前」駅徒歩25分

価格
3,190万円
間取り
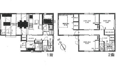
3LDK
土地面積
127.60㎡
所在地
広島県広島市佐伯区五月が丘3丁目
交通

広島高速交通アストラムライン広域公園前」駅 徒歩25分

建物面積
97.71㎡
築年月
2025年10月(新築)

物件の特徴

  • TVモニタ付きインターホン

  • カウンターキッチン

  • 浴室乾燥機

セールスポイント

長期優良住宅・住宅性能表示W取得!
高台なので眺望と日当たりの良さが魅力です。
周辺には公園や病院などの生活施設が充実しており、
子育て世代にも適しています。
また、バス路線も整備されており、通勤・通学にも便利な立地です。

ポイント

長期優良住宅 高断熱住宅 耐震構造 エコキュート TVモニタ付インターホン 複層ガラス 浴室乾燥機

担当者のコメント

酒松 健人

物価高になり、高い買い物のマイホームは悩みますが、
家族で長く暮らせるおうちは安心です。
住宅ローンの事などご相談に乗ります。 
毎月の返済額のシュミレーションもできます。
まずは資料請求からでも、お気軽にお問い合わせください。

基本情報

販売戸数
-
総戸数
-
間取り / 詳細
3LDK
LDK 17.0帖/洋室 8.5帖/洋室 6.0帖/洋室 6.0帖
向き
建物面積(坪数)
97.71㎡(29.55坪)
土地面積(坪数)
127.60㎡(38.59坪)
建ぺい率 /
容積率
50%/100%
築年月
2025年10月(新築)
駐車場 /
月額料金
有(2台) -
土地権利
所有権
土地
(敷金 / 保証金)
- / -
建物構造
木造 / 2階建
傾斜地部分面積
-
路地状敷地
-
私道負担面積
-
セットバック
高圧線下面積
-
施工会社
-
用途地域
第一種低層住居専用
地目 / 地勢
宅地 / 高台
接道状況
一方(東 公道 6.1m)
国土法届出要否
不要
都市計画
市街化区域
総区画数 /
販売区画数
-/-
現況
完成済み
その他
法令上の制限
-
取引態様
一般媒介
引渡し
即時
取引条件の
有効期限
2026年03月17日

設備条件

設備条件
  • 陽当り良好 / 閑静な住宅地 / 建設住宅性能評価書付 / バルコニー / 公営水道 / 公共下水 / オール電化 / 駐車2台可 / 耐震構造 / システムキッチン / カウンターキッチン / 浴室乾燥機 / 洗面台 / トイレ2ヶ所 / 床下収納 / ウォークインクロゼット / TVモニタ付インターホン / 宅配ボックス / 複層ガラス
設備(その他)
    -

その他

物件番号
94800962
管理コード
35731
建築確認番号
第R06認広建セ02867号
情報更新日
2026年03月03日
次回更新予定日
2026年03月17日
取扱会社
  • 株式会社ティアンドエス
  • 広島県広島市佐伯区楽々園5丁目25番8号 2F 佐伯区スポーツセンター前
  • TEL:082-943-6363
  • 広島県知事 (5) 第8818号
  • 公益社団法人 広島県宅地建物取引業協会
    広島県中小企業家同友会

近隣の物件

  1. 佐伯区八幡東2丁目 №35857

    広島市佐伯区八幡東2丁目

    4LDK (102.60㎡)

    3,198万円

  2. 佐伯区八幡東2丁目 №35855

    広島市佐伯区八幡東2丁目

    4LDK (100.00㎡)

    2,898万円

  3. 佐伯区八幡東2丁目 №35856

    広島市佐伯区八幡東2丁目

    4LDK (104.23㎡)

    3,198万円

  4. 佐伯区五日市中央5丁目 №36318

    広島市佐伯区五日市中央5丁目

    4LDK (100.19㎡)

    4,280万円

よく見られている物件

  1. マ・メゾン 廿日市市宮園上5丁目 №100

    廿日市市宮園上5丁目

    3LDK (90.67㎡)

    3,980万円

  2. マ・メゾン 佐伯区海老園3丁目 №102

    広島市佐伯区海老園3丁目

    2LDK+2S(納戸) (105.16㎡)

    5,180万円

  3. マ・メゾン 佐伯区隅の浜2丁目 №119

    広島市佐伯区隅の浜2丁目

    3LDK+S(納戸) (107.23㎡)

    4,580万円

  4. マ・メゾン 佐伯区五日市中央5丁目 №101

    広島市佐伯区五日市中央5丁目

    4LDK (102.68㎡)

    4,480万円

佐伯区五月が丘三丁目 №35731

佐伯区五月が丘三丁目 №35731

3,190万円

-

3LDK(97.71㎡)

お気軽にお問い合わせください

無料お問い合わせ

株式会社ティアンドエス

082-943-6363

9:00~17:00

(休:日曜・祝日 GW お盆 正月)