佐伯区皆賀1丁目 №35914

4,980万円

広島県広島市佐伯区皆賀1丁目

山陽本線「五日市」駅徒歩15分

広島電鉄宮島線「修大協創中高前」駅徒歩12分

価格
4,980万円
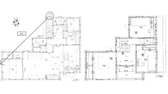
間取り
4LDK
土地面積
149.70㎡
所在地
広島県広島市佐伯区皆賀1丁目
交通

山陽本線五日市」駅 徒歩15分

広島電鉄宮島線修大協創中高前」駅 徒歩12分

建物面積
104.33㎡
築年月
2025年1月(新築)

物件の特徴

  • TVモニタ付きインターホン

  • カウンターキッチン

  • 浴室乾燥機

セールスポイント

敷地ゆったり・日当たり良好な物件です。
カップボード・シューズインクローク・全居室クローゼット付きで収納力抜群。
都市ガスのエネファーム採用 
小学校徒歩圏、バス停徒歩7分と利便性も良好です。

ポイント

LDK15帖以上  全居室収納TVモニタ付 インターホン 省エネ給湯器 フラット35Sに対応  複層ガラス

担当者のコメント

酒松 健人

西区・佐伯区・廿日市、地域密着の会社だからご不明な点も安心して
お任せください。 掲載していない物件も多数ご用意しております。
まずはお気軽にお問い合わせください。

基本情報

販売戸数
-
総戸数
-
間取り / 詳細
4LDK
LDK 17.5帖/和室 4.5帖/洋室 7.0帖/洋室 5.4帖/洋室 5.2帖
向き
建物面積(坪数)
104.33㎡(31.55坪)
土地面積(坪数)
149.70㎡(45.28坪)
建ぺい率 /
容積率
60%/200%
築年月
2025年1月(新築)
土地権利
所有権
土地
(敷金 / 保証金)
- / -
建物構造
木造 / 2階建
傾斜地部分面積
-
路地状敷地
-
私道負担面積
-
セットバック
高圧線下面積
-
施工会社
-
用途地域
第二種中高層住居専用
地目 / 地勢
宅地 / -
接道状況
一方(北西 私道 5.2m)
国土法届出要否
不要
都市計画
市街化区域
総区画数 /
販売区画数
-/-
現況
完成済み
その他
法令上の制限
-
取引態様
一般媒介
引渡し
即時
取引条件の
有効期限
2026年06月02日

設備条件

設備条件
  • 陽当り良好 / 閑静な住宅地 / フローリング / バルコニー / 都市ガス / 公営水道 / 公共下水 / 駐車2台可 / 食器洗い乾燥機 / システムキッチン / カウンターキッチン / 浴室乾燥機 / 温水洗浄便座 / 洗面台 / トイレ2ヶ所 / 床下収納 / 収納豊富 / TVモニタ付インターホン / 宅配ボックス / 複層ガラス
設備(その他)
    -

その他

物件番号
96182777
管理コード
35914
建築確認番号
第R06認広建セ01128号
情報更新日
2026年05月19日
次回更新予定日
2026年06月02日
取扱会社
  • 株式会社ティアンドエス
  • 広島県広島市佐伯区楽々園5丁目25番8号 2F 佐伯区スポーツセンター前
  • TEL:082-943-6363
  • 広島県知事 (5) 第8818号
  • 公益社団法人 広島県宅地建物取引業協会
    広島県中小企業家同友会

周辺施設

  • 五日市中学校の画像

    中学校

    五日市中学校

    1965m(25分)

  • エディオンの画像

    家電製品

    エディオン

    2201m(28分)

近隣の物件

  1. 佐伯区五月が丘4丁目 №36517

    広島市佐伯区五月が丘4丁目

    3LDK (96.46㎡)

    3,097万円

  2. 佐伯区五月が丘2丁目 №36772

    広島市佐伯区五月が丘2丁目

    4LDK (99.77㎡)

    3,290万円

  3. 佐伯区五月が丘4丁目 №36518

    広島市佐伯区五月が丘4丁目

    4LDK (106.81㎡)

    3,395万円

  4. 佐伯区三宅5丁目 №36530

    広島市佐伯区三宅5丁目

    4LDK (111.23㎡)

    3,198万円

よく見られている物件

  1. マ・メゾン 廿日市市宮園上5丁目 №100

    廿日市市宮園上5丁目

    3LDK (90.67㎡)

    3,980万円

  2. マ・メゾン 佐伯区海老園3丁目 №102

    広島市佐伯区海老園3丁目

    2LDK+2S(納戸) (105.16㎡)

    5,080万円

  3. マ・メゾン 佐伯区隅の浜2丁目 №119

    広島市佐伯区隅の浜2丁目

    3LDK+S(納戸) (107.23㎡)

    4,580万円

  4. マ・メゾン 佐伯区五日市中央5丁目 №101

    広島市佐伯区五日市中央5丁目

    4LDK (102.68㎡)

    4,380万円

佐伯区皆賀1丁目 №35914

佐伯区皆賀1丁目 №35914

4,980万円

-

4LDK(104.33㎡)

お気軽にお問い合わせください

無料お問い合わせ

株式会社ティアンドエス

082-943-6363

9:00~17:00

(休:日曜・祝日 GW お盆 正月)