廿日市市阿品2丁目 №36323

3,880万円

広島県廿日市市阿品2丁目

山陽本線「阿品」駅徒歩4分

価格
3,880万円
間取り
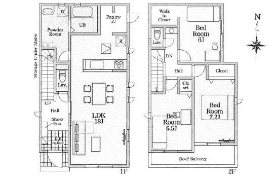
3LDK+S(納戸)
土地面積
123.79㎡
所在地
広島県廿日市市阿品2丁目
交通

山陽本線阿品」駅 徒歩4分

建物面積
103.38㎡
築年月
2025年8月(新築)

物件の特徴

  • TVモニタ付きインターホン

  • カウンターキッチン

  • 浴室乾燥機

セールスポイント

阿品駅まで徒歩4分の好立地、日当たり良好な角地・平坦地に建つオール電化住宅。
太陽光発電搭載で省エネ・経済的です。
3LDKに加え、納戸やシューズインクローク付きで収納も充実。
IHコンロ・食洗機付きなど設備も整い、快適な暮らしを実現します。

ポイント

オール電化 IHクッキングヒーター 浴室乾燥機 駅徒歩10分以内 接道幅10m以上 TVモニタ付インターホン シューズインクローク トイレ2ヶ所 省エネ給湯器 温水洗浄便座

担当者のコメント

酒松 健人

西区・佐伯区・廿日市、地域密着の会社だからご不明な点も安心して
お任せください。 掲載していない物件も多数ご用意しております。
まずはお気軽にお問い合わせください。

基本情報

販売戸数
-
総戸数
-
間取り / 詳細
3LDK+S(納戸)
LDK 18.0帖/洋室 6.9帖/洋室 5.3帖/洋室 4.5帖/S 4.5帖
向き
建物面積(坪数)
103.38㎡(31.27坪)
土地面積(坪数)
123.79㎡(37.44坪)
建ぺい率 /
容積率
60%/200%
築年月
2025年8月(新築)
駐車場 /
月額料金
有(2台) -
土地権利
所有権
土地
(敷金 / 保証金)
- / -
建物構造
木造 / 2階建
傾斜地部分面積
-
路地状敷地
-
私道負担面積
-
セットバック
高圧線下面積
-
施工会社
-
用途地域
第一種住居
地目 / 地勢
宅地 / -
接道状況
二方(東 公道 4.0m 間口 11.9m)(北西 私道 4.3m)
国土法届出要否
不要
都市計画
市街化区域
総区画数 /
販売区画数
-/-
現況
完成済み
その他
法令上の制限
-
取引態様
一般媒介
引渡し
即時
取引条件の
有効期限
2025年11月18日

設備条件

設備条件
  • 陽当り良好 / フローリング / バルコニー / 公営水道 / 個別浄化槽 / オール電化 / 駐車2台可 / 食器洗い乾燥機 / システムキッチン / カウンターキッチン / 浴室乾燥機 / 温水洗浄便座 / トイレ2ヶ所 / 浴室1坪以上 / 床下収納 / 収納豊富 / TVモニタ付インターホン / 複層ガラス
設備(その他)
    -

その他

物件番号
97720080
管理コード
36323
建築確認番号
第R06確認建築廿日市00016号
情報更新日
2025年11月04日
次回更新予定日
2025年11月18日

周辺施設

  • ふじ保育園の画像

    保育園

    ふじ保育園

    974m(13分)

  • フジグランの画像

    スーパー

    フジグラン

    1002m(13分)

  • 阿品台西小学校の画像

    小学校

    阿品台西小学校

    1302m(17分)

近隣の物件

  1. 廿日市市福面2丁目 №35850

    廿日市市福面2丁目

    3LDK (85.72㎡)

    3,390万円

  2. 廿日市市串戸4丁目 №35937

    廿日市市串戸4丁目

    4LDK (99.36㎡)

    4,690万円

  3. 廿日市市串戸4丁目 №35936

    廿日市市串戸4丁目

    3LDK (98.12㎡)

    4,690万円

  4. 廿日市市福面2丁目 №35849

    廿日市市福面2丁目

    3LDK (89.85㎡)

    3,090万円

廿日市市阿品2丁目 №36323

廿日市市阿品2丁目 №36323

3,880万円

-

3LDK+S(納戸)(103.38㎡)

お気軽にお問い合わせください

無料お問い合わせ

株式会社ティアンドエス

082-943-6363

9:00~17:00

(休:日曜・祝日 GW お盆 正月)