NEW

西区高須三丁目 №35425

3,490万円

広島県広島市西区高須3丁目

広島電鉄宮島線「高須」駅徒歩8分

価格
3,490万円
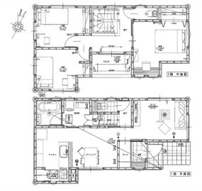
間取り
3LDK
土地面積
95.16㎡
所在地
広島県広島市西区高須3丁目
交通

広島電鉄宮島線高須」駅 徒歩8分

建物面積
84.86㎡
築年月
2024年8月(新築)

物件の特徴

  • TVモニタ付きインターホン

  • カウンターキッチン

セールスポイント

小家族にちょうどいい3LDK
全居室フローリング 5.5帖以上の居室
リビングとダイニングが離れているので、食
事と団らんとメリハリがつきます

ポイント

お天気の日はベランダで 梅雨や花粉の時期は室内物干しで洗濯物が干せます

担当者のコメント

酒松 健人

物価高になり、高い買い物のマイホームは悩みますが、
家族で長く暮らせるおうちは安心です。
住宅ローンの事などご相談に乗ります。 
毎月の返済額のシュミレーションもできます。
まずは資料請求からでも、お気軽にお問い合わせください。

基本情報

販売戸数
-
総戸数
-
間取り / 詳細
3LDK
LDK 16.5帖/洋室 7.0帖/洋室 5.5帖/洋室 5.5帖
向き
建物面積(坪数)
84.86㎡(25.67坪)
土地面積(坪数)
95.16㎡(28.78坪)
建ぺい率 /
容積率
60%/200%
築年月
2024年8月(新築)
駐車場 /
月額料金
有(2台) -
土地権利
所有権
土地
(敷金 / 保証金)
- / -
建物構造
木造 / 2階建
傾斜地部分面積
-
路地状敷地
-
私道負担面積
-
セットバック
高圧線下面積
-
施工会社
-
用途地域
第一種住居
地目 / 地勢
宅地 / 高台
接道状況
一方(南東 公道 4.1m)
国土法届出要否
不要
都市計画
市街化区域
総区画数 /
販売区画数
-/-
現況
完成済み
その他
法令上の制限
-
取引態様
一般媒介
引渡し
即時
取引条件の
有効期限
2026年02月03日

設備条件

設備条件
  • 陽当り良好 / 閑静な住宅地 / バルコニー / 都市ガス / 公営水道 / 公共下水 / 駐車2台可 / システムキッチン / カウンターキッチン / 温水洗浄便座 / 洗面台 / トイレ2ヶ所 / 床下収納 / TVモニタ付インターホン / 宅配ボックス / 複層ガラス / 角部屋
設備(その他)
    -

その他

物件番号
93210550
管理コード
35425
建築確認番号
第R05認広建セ02570号
情報更新日
2026年01月20日
次回更新予定日
2026年02月03日
取扱会社
  • 株式会社ティアンドエス
  • 広島県広島市佐伯区楽々園5丁目25番8号 2F 佐伯区スポーツセンター前
  • TEL:082-943-6363
  • 広島県知事 (5) 第8818号
  • 公益社団法人 広島県宅地建物取引業協会
    広島県中小企業家同友会

近隣の物件

  1. 西区井口四丁目 №33666

    広島市西区井口4丁目

    3LDK (95.23㎡)

    4,390万円

  2. 西区観音新町三丁目 №34849

    広島市西区観音新町3丁目

    3LDK (112.24㎡)

    3,580万円

  3. 西区井口四丁目 №36312

    広島市西区井口4丁目

    4LDK (94.01㎡)

    3,880万円

  4. 西区新庄町 №33850

    広島市西区新庄町

    3LDK (95.22㎡)

    3,350万円

西区高須三丁目 №35425

西区高須三丁目 №35425

3,490万円

-

3LDK(84.86㎡)

お気軽にお問い合わせください

無料お問い合わせ

株式会社ティアンドエス

082-943-6363

9:00~17:00

(休:日曜・祝日 GW お盆 正月)