西区古江東町 №35749

4,280万円

広島県広島市西区古江東町

広島電鉄宮島線「高須」駅徒歩8分

価格
4,280万円
間取り
4LDK
土地面積
134.75㎡
所在地
広島県広島市西区古江東町
交通

広島電鉄宮島線高須」駅 徒歩8分

建物面積
100.60㎡
築年月
2024年10月(新築)

物件の特徴

  • TVモニタ付きインターホン

  • カウンターキッチン

セールスポイント

広電高須駅まで徒歩8分なのでお出かけにも便利。
パントリーやシューズインクロークなど収納も多いので、
お部屋もスッキリと見せることができます。

ポイント

瑕疵保険検査基準適合 南東向き LDK18帖以上 収納豊富 宅配BOX付

担当者のコメント

酒松 健人

西区・佐伯区・廿日市、地域密着の会社だからご不明な点も安心して
お任せください。 掲載していない物件も多数ご用意しております。
まずはお気軽にお問い合わせください。

基本情報

販売戸数
-
総戸数
-
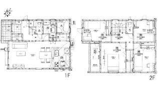
間取り / 詳細
4LDK
LDK 18.0帖/洋室 7.0帖/洋室 5.2帖/洋室 5.2帖/洋室 4.5帖
向き
南東
建物面積(坪数)
100.60㎡(30.43坪)
土地面積(坪数)
134.75㎡(40.76坪)
建ぺい率 /
容積率
60%/200%
築年月
2024年10月(新築)
駐車場 /
月額料金
有 -
土地権利
所有権
土地
(敷金 / 保証金)
- / -
建物構造
木造 / 2階建
傾斜地部分面積
-
路地状敷地
-
私道負担面積
-
セットバック
高圧線下面積
-
施工会社
-
用途地域
第一種住居
地目 / 地勢
宅地 / 高台
接道状況
一方(南西 6.2m)
国土法届出要否
不要
都市計画
市街化区域
総区画数 /
販売区画数
-/-
現況
完成済み
その他
法令上の制限
-
取引態様
一般媒介
引渡し
即時
取引条件の
有効期限
2025年12月23日

設備条件

設備条件
  • 閑静な住宅地 / バルコニー / 都市ガス / 公営水道 / 公共下水 / システムキッチン / カウンターキッチン / 温水洗浄便座 / トイレ2ヶ所 / 床下収納 / ウォークインクロゼット / TVモニタ付インターホン / 宅配ボックス / 複層ガラス
設備(その他)
    -

その他

物件番号
94669784
管理コード
35749
建築確認番号
第R06認広建セ00436号
情報更新日
2025年12月09日
次回更新予定日
2025年12月23日
取扱会社
  • 株式会社ティアンドエス
  • 広島県広島市佐伯区楽々園5丁目25番8号 2F 佐伯区スポーツセンター前
  • TEL:082-943-6363
  • 広島県知事 (5) 第8818号
  • 公益社団法人 広島県宅地建物取引業協会
    広島県中小企業家同友会

周辺施設

  • ゾーナイタリアの画像

    イタリア料理

    ゾーナイタリア

    1801m(23分)

近隣の物件

  1. 西区井口四丁目 №35784

    広島市西区井口4丁目

    2SLDK (100.45㎡)

    4,100万円

  2. 西区新庄町 №33850

    広島市西区新庄町

    3LDK (95.22㎡)

    3,350万円

  3. 西区古江西町 №35473

    広島市西区古江西町

    3LDK (99.63㎡)

    4,290万円

  4. 西区大芝二丁目 №35474

    広島市西区大芝2丁目

    4LDK (80.10㎡)

    4,680万円

西区古江東町 №35749

西区古江東町 №35749

4,280万円

-

4LDK(100.60㎡)

お気軽にお問い合わせください

無料お問い合わせ

株式会社ティアンドエス

082-943-6363

9:00~17:00

(休:日曜・祝日 GW お盆 正月)