佐伯区五日市中央5丁目 №36318

4,280万円

広島県広島市佐伯区五日市中央5丁目

山陽本線「五日市」駅徒歩23分

価格
4,280万円
間取り
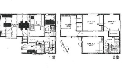
4LDK+S(納戸)
土地面積
102.98㎡
所在地
広島県広島市佐伯区五日市中央5丁目
交通

山陽本線五日市」駅 徒歩23分

建物面積
100.19㎡
築年月
2026年2月(予定)

物件の特徴

  • TVモニタ付きインターホン

  • カウンターキッチン

  • 浴室乾燥機

セールスポイント

省エネ基準適合住宅・制震ダンパー付きで安心の住まい。
シューズインクローク・全居室収納付きで収納も充実しています。
平坦地で周りに商業施設も近く生活便利な好立地です。

ポイント

LDK15帖以上 食器洗乾燥機 駐車2台可 複層ガラス 全居室収納 ファミリー向け 平坦地 システムキッチン フラット35Sに対応

担当者のコメント

酒松 健人

西区・佐伯区・廿日市、地域密着の会社だからご不明な点も安心して
お任せください。 掲載していない物件も多数ご用意しております。
まずはお気軽にお問い合わせください。

基本情報

販売戸数
-
総戸数
-
間取り / 詳細
4LDK+S(納戸)
LDK 16.0帖/洋室 6.5帖/洋室 5.2帖/洋室 5.2帖/洋室 4.5帖/S
向き
建物面積(坪数)
100.19㎡(30.3坪)
土地面積(坪数)
102.98㎡(31.15坪)
建ぺい率 /
容積率
60%/160%
築年月
2026年2月(予定)
駐車場 /
月額料金
有 -
土地権利
所有権
土地
(敷金 / 保証金)
- / -
建物構造
木造 / 2階建
傾斜地部分面積
-
路地状敷地
-
私道負担面積
-
セットバック
高圧線下面積
-
施工会社
-
用途地域
第一種住居
地目 / 地勢
宅地 / 平坦
接道状況
一方(西 私道 3.7m)
国土法届出要否
不要
都市計画
市街化区域
総区画数 /
販売区画数
-/-
現況
未完成
その他
法令上の制限
-
取引態様
一般媒介
引渡し
2026年2月
取引条件の
有効期限
2026年03月17日

設備条件

設備条件
  • 都市ガス / 公営水道 / 公共下水 / 駐車2台可 / 耐震構造 / 食器洗い乾燥機 / システムキッチン / カウンターキッチン / 浴室乾燥機 / 温水洗浄便座 / トイレ2ヶ所 / 床下収納 / ウォークインクロゼット / TVモニタ付インターホン / 複層ガラス
設備(その他)
    -

その他

物件番号
100893471
管理コード
36318
建築確認番号
第R07認広建セ00610号
情報更新日
2026年03月03日
次回更新予定日
2026年03月17日
取扱会社
  • 株式会社ティアンドエス
  • 広島県広島市佐伯区楽々園5丁目25番8号 2F 佐伯区スポーツセンター前
  • TEL:082-943-6363
  • 広島県知事 (5) 第8818号
  • 公益社団法人 広島県宅地建物取引業協会
    広島県中小企業家同友会

周辺施設

  • エディオンの画像

    家電製品

    エディオン

    519m(7分)

  • フタバ図書の画像

    書店

    フタバ図書

    1610m(21分)

近隣の物件

  1. 佐伯区八幡東2丁目 №35857

    広島市佐伯区八幡東2丁目

    4LDK (102.60㎡)

    3,198万円

  2. 佐伯区八幡東2丁目 №35855

    広島市佐伯区八幡東2丁目

    4LDK (100.00㎡)

    2,898万円

  3. 佐伯区八幡東2丁目 №35856

    広島市佐伯区八幡東2丁目

    4LDK (104.23㎡)

    3,198万円

  4. 佐伯区五日市中央5丁目 №36319

    広島市佐伯区五日市中央5丁目

    3LDK (105.16㎡)

    4,380万円

よく見られている物件

  1. マ・メゾン 廿日市市宮園上5丁目 №100

    廿日市市宮園上5丁目

    3LDK (90.67㎡)

    3,980万円

  2. マ・メゾン 佐伯区海老園3丁目 №102

    広島市佐伯区海老園3丁目

    2LDK+2S(納戸) (105.16㎡)

    5,180万円

  3. マ・メゾン 佐伯区隅の浜2丁目 №119

    広島市佐伯区隅の浜2丁目

    3LDK+S(納戸) (107.23㎡)

    4,580万円

  4. マ・メゾン 佐伯区五日市中央5丁目 №101

    広島市佐伯区五日市中央5丁目

    4LDK (102.68㎡)

    4,480万円

佐伯区五日市中央5丁目 №36318

佐伯区五日市中央5丁目 №36318

4,280万円

-

4LDK+S(納戸)(100.19㎡)

お気軽にお問い合わせください

無料お問い合わせ

株式会社ティアンドエス

082-943-6363

9:00~17:00

(休:日曜・祝日 GW お盆 正月)